地元宮城でこれからも頑張ります。
おかげさまで50年目
お問合せ

石巻9号棟展示場

来場予約 宿泊予約
0225-24-8133
※ガス衣類乾燥機 乾太くんがある宿泊展示場です。
乾太くん
Brand _ CHOORDY
Concept

おしゃれで居心地の良い
新ブランド仕様の展示場

 スモリの家の新ブランド「CHOORDY(チョーディー)」の魅力をご体感いただける展示場です。「まるでカフェに暮らすように。」をテーマに、インテリアをアンティークの風合いと木のぬくもりが調和するカフェヴィンテージスタイルでまとめました。どこか懐かしくて居心地の良い空間がくつろぎの時間を紡ぎ出し、毎日の暮らしを豊かに彩ってくれます。お気に入りの一杯を片手に過ごす午後のような、“ちょうどいい”住まいでのひとときをご提案いたします。ぜひごゆっくりお過ごしください。


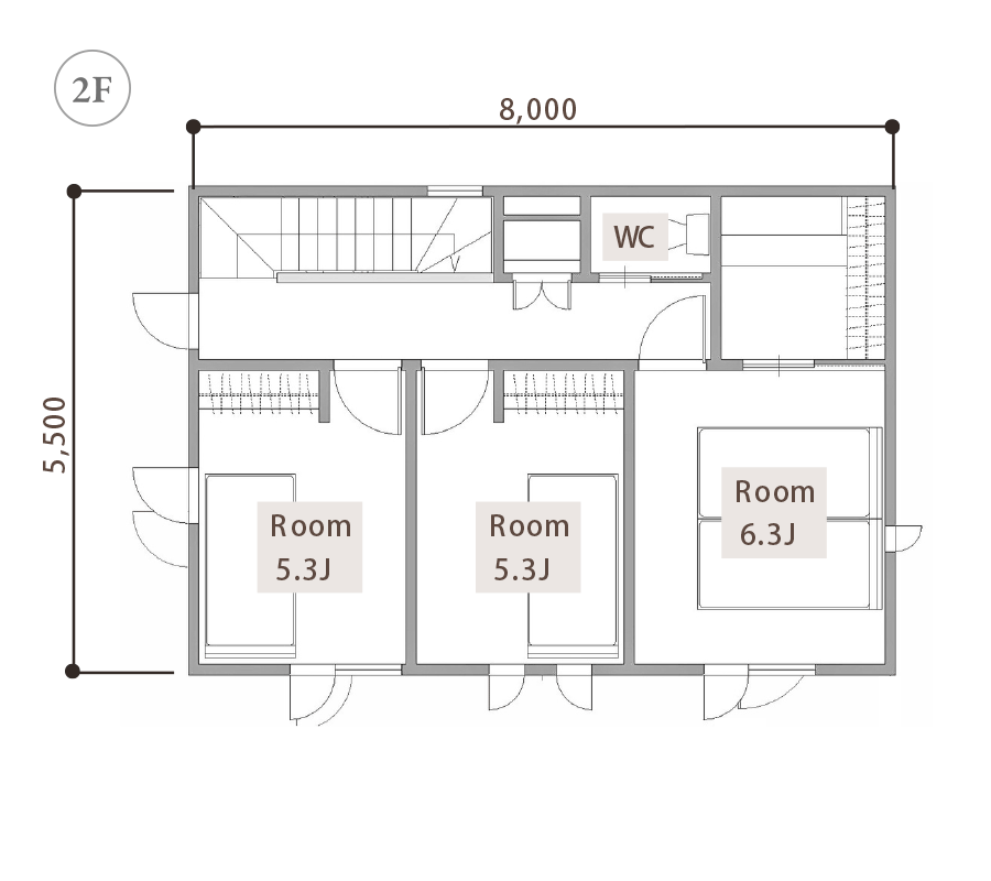
間取り図1F間取り図2F

石巻9号棟展示場

来場予約 宿泊予約

宿泊体験お客様アンケート

住宅展示場
一覧を見る

スモリ工業株式会社

〒983-0013 宮城県仙台市宮城野区中野一丁目5-9
ZEH普及目標と実績